Promociones en curso

Calle Aznar Molina

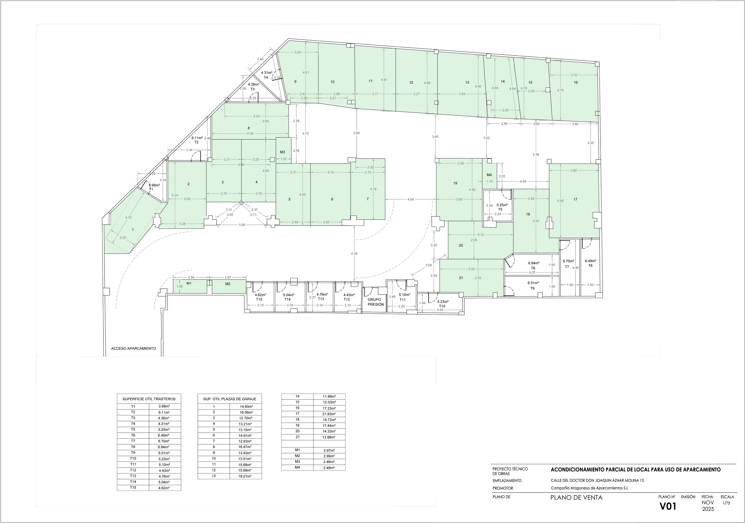
Calle Aznar Molina n 13
Características de la promoción:
El garaje tiene su acceso a nivel planta de calle (sin rampas), por calle Aznar Molina n13 , cuenta con la preinstalación para vehículos eléctricos,El garaje está dotado de sistemas automáticos de ventilación para la evacuación de gases y humo. La instalación eléctrica será con elementos tipo Led. Puerta automática con mecanismos temporizadores. Los cuartos trasteros serán de tabiquería de hormigón 40x20x10 , con punto de luz. Disponemos de cuatro tipos de unidades plazas de garaje con trastero, plazas sin trastero, trasteros independientes y plazas de moto. Fiscalidad de las operaciones de venta.
La entrega de los garajes y trasteros de esta promoción no se considera fiscalmente como una primera entrega y tienen la consideración de segundas o ulteriores entregas de edificaciones, sujetas pero exentas de IVA, por lo que deben de tributar por el Impuesto de Transmisiones Patrimoniales (ITP), ante el Gobierno de Aragón (actualmente al tipo del 8%), tras la firma de la adquisición del garaje o trastero ante Notario.
En el caso de empresarios o profesionales sujetos pasivos de IVA, tienen la posibilidad de renunciar a la exención del IVA, por lo que el precio de adquisición será aumentado en un 21 % de IVA Y deberán de tributar el impuesto de Actos Jurídicos Documentados (AJD) ante el Gobierno de Aragón (actualmente al 1,5%), tras la adquisición del bien ante Notario.
Descargar plano
aragonesa de aparcamientos
aragonesa de aparcamientos
aragonesa de aparcamientos